
Rénovation complète et création de deux appartements dans les combles.
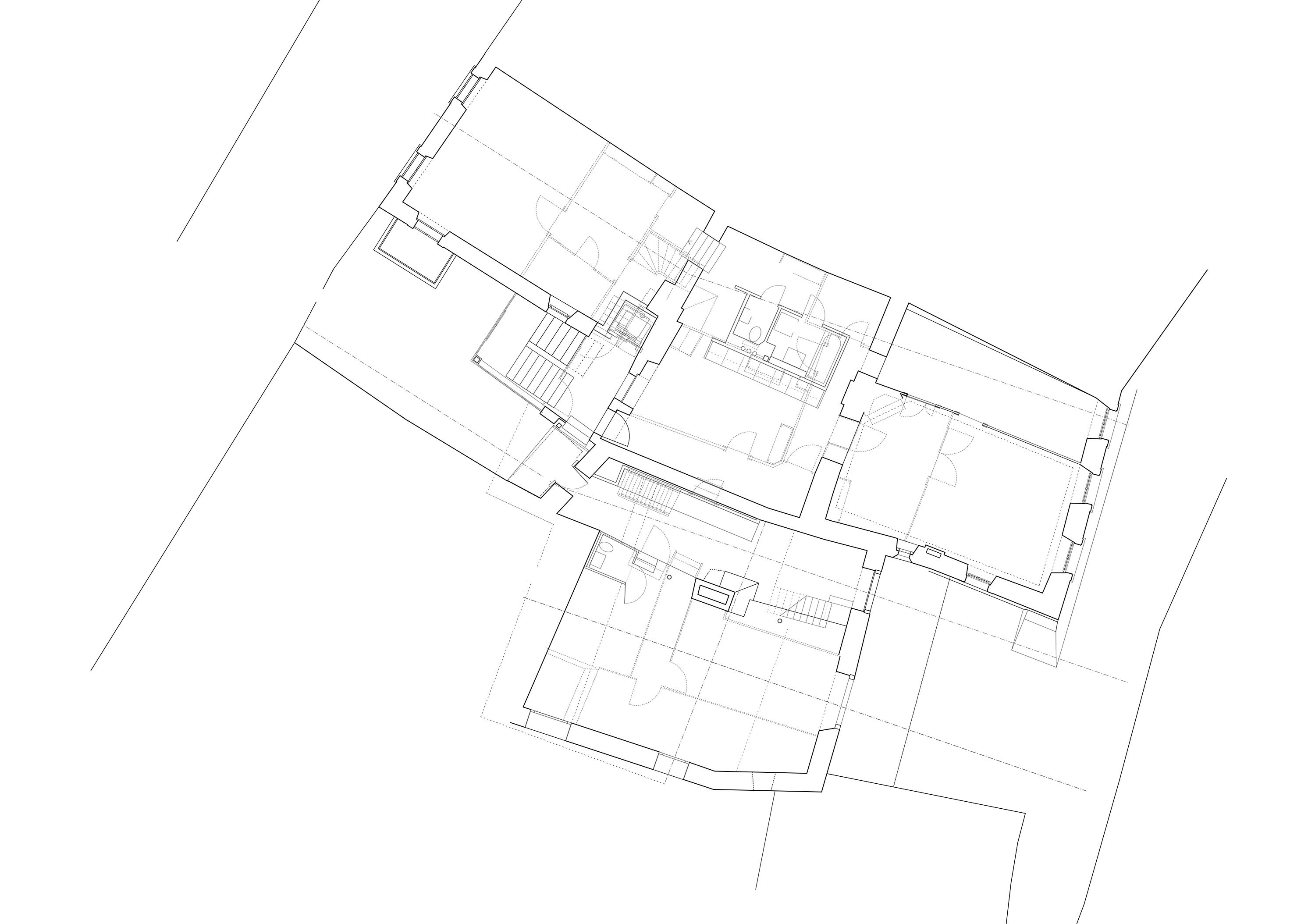
L’immeuble, situé dans le Bourg de Lutry, est très ancien: la façade médiévale résulte d’une transformation vers 1520. Constitué de plus de 4 maisons de différentes époques (jusqu’au XIXe siècle), il est classé monument historique. Très vétuste, l’immeuble a été entièrement rénové et restauré pour accueillir deux commerces et sept logements accessibles à partir d’un seul escalier, avec ascenseur. Sans compromettre la qualité, les coûts ont été maintenus au niveau d’une transformation habituelle (compte tenu des subventions soit env. 10%). Les poutraisons anciennes ont été conservées, notamment les planchers réhabilités en “dalle mixte” grâce à l’adjonction d’une table de compression en béton. Une attention particulière est portée à l’isolation et au renouvellement d’air, sans porter atteinte au caractère historique. Le bâtiment est le premier bâtiment classé de Suisse à avoir obtenu le label Minergie.



3ème étage

Coupe