
Deux volumes simples aux gabarits distincts s’insèrent de manière précise dans le site et forment un ensemble cohérent avec le contexte en définissant une nouvelle place villageoise.
Un premier bâtiment d’un seul niveau et de type pavillonnaire, comprend l’accueil extra-scolaire, la salle polyvalente et l’accès au parking sous-terrain. Sa toiture à 4 pans rayonne avec les toitures existantes. Un généreux parvis lui confère un caractère public.
La nouvelle école, dans l’alignement du palais scolaire brocois et en retrait de l’église pour en préserver la vue, trouve son entrée sur la nouvelle place. A la fois ouverte sur l’extérieur et protégée par la présence de la végétation, sa position préserve le cheminement public existant et offre de généreux espaces extérieurs pour le jeu ou l’enseignement. Les salles de classe enfantine, toutes situées au rez-de-chaussée, bénéficient de prolongements extérieurs aux caractères de verger-jardin. A l’étage se trouve les classes pour les plus grands et le programme administratif. Sa toiture à deux pans rappelle l’orientation principale des faîtes dans ce centre villageois et dialogue avec la toiture de l’école existante toute proche.

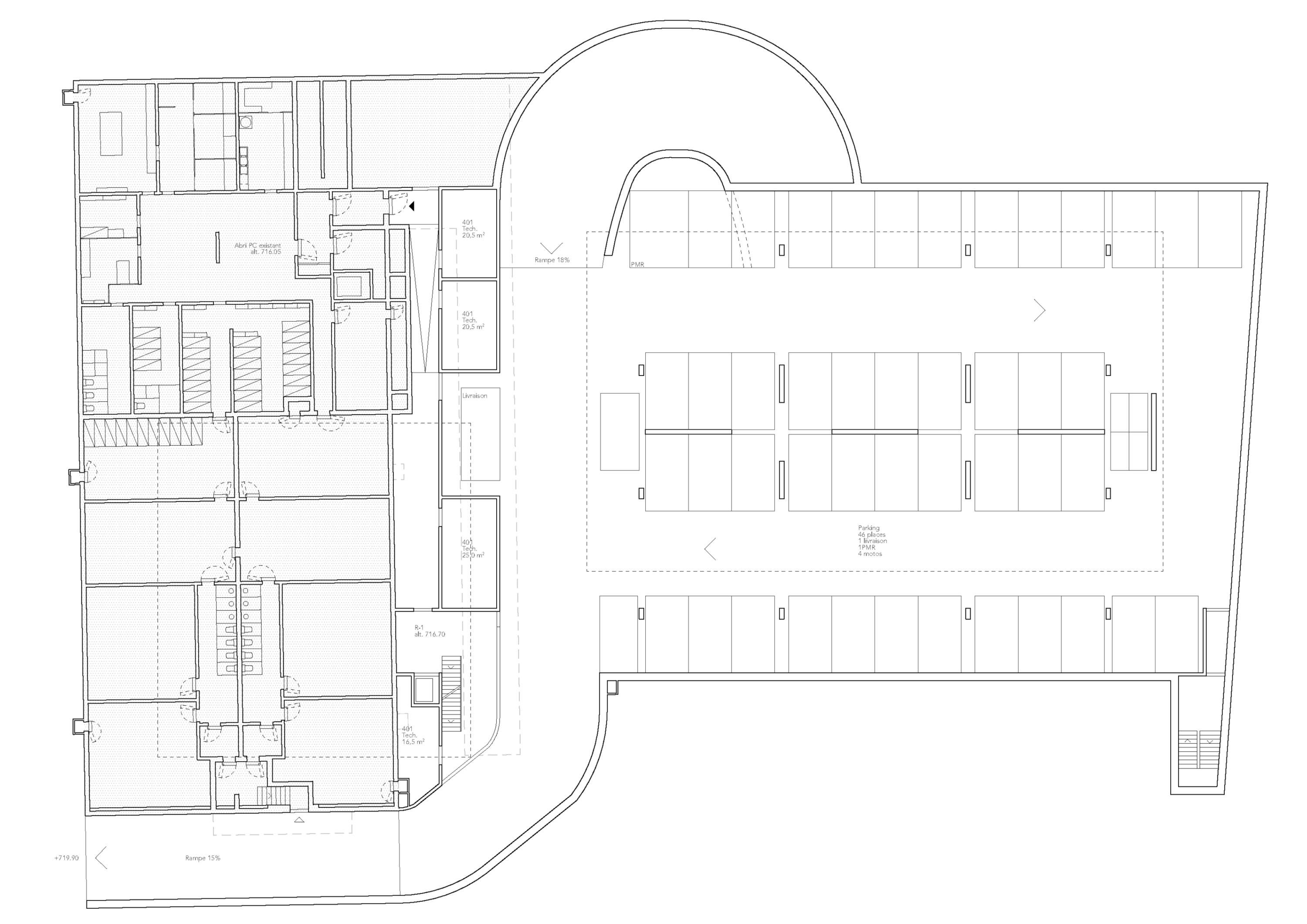
Le parking s’inscrit sur deux niveaux enterrés et redéfinit le rapport à l’abri PC existant. Le bus scolaire dépose les écoliers à proximité de la place et repart sans la traverser. Les flux sont optimisés permettant de rendre piétonne la rue des écoles.
Le principe de durabilité est pensé de manière holistique et pragmatique :
– Une conception du bâtiment pour offrir un maximum de flexibilité et une grande liberté d’appropriation. Elle met en œuvre une structure rationnelle développant un plan libre permettant des aménagements intérieurs modulables.
– Les installations techniques low tech sont accessibles et facilitent l’entretien et l’exploitation.
– Le projet propose d’utiliser des ressources locales et renouvelables. Moyennant une anticipation raisonnable et une organisation ciblée, il est possible à la fois de construire avec des matériaux de la région (structure bois, usage de terre crue et cuite pour les murs, le sol, le toit) et d’assurer une contribution des entreprises majoritairement locales.


Elévations

Plan du rez de chaussée

Etage école

1er sous-sol

Coupes
2324