
Les deux premiers bâtiments du vaste projet de transformation du site scolaire des voiles du Léman revêtent une importance stratégique autant que symbolique : le bâtiment A contient l’UAPE et la bibliothèque/ludothèque, il redéfinit l’accès principal du site au nord-ouest, le bâtiment B quant à lui contient la cantine, l’infirmerie et l’association Univers 1028, il redéfinit le centre de gravité de toute l’institution. Les deux projets assument leur caractère pavillonnaire autant par leur matérialité que leur gabarit tout en affirmant leur identité propre en fonction de leur programme.

Le bâtiment A est conçu comme une succession de lames porteuses créant des espaces modulaires libres de toute contrainte structurelle. Les 2 UAPE prennent place au rez-de-chaussée alors que la bibliothèque et la ludothèque sont à l’étage. L’entrée est en lien direct avec l’espace public. A l’intérieur du bâtiment un système de circulation sans couloir offre des espaces pouvant accueillir des usages spécifiques. L’organisation spatiale permet d’optimiser les usages et les apports de lumière naturelle. Les salles des UAPE s’ouvrent sur des aires de jeux extérieures réunies et s’étendant jusqu’au chemin du collège au nord, elles profitent de la différence de niveau du parking souterrain existant pour créer une topographie qui permet une appropriation ludique tout en préservant une certaine intimité.
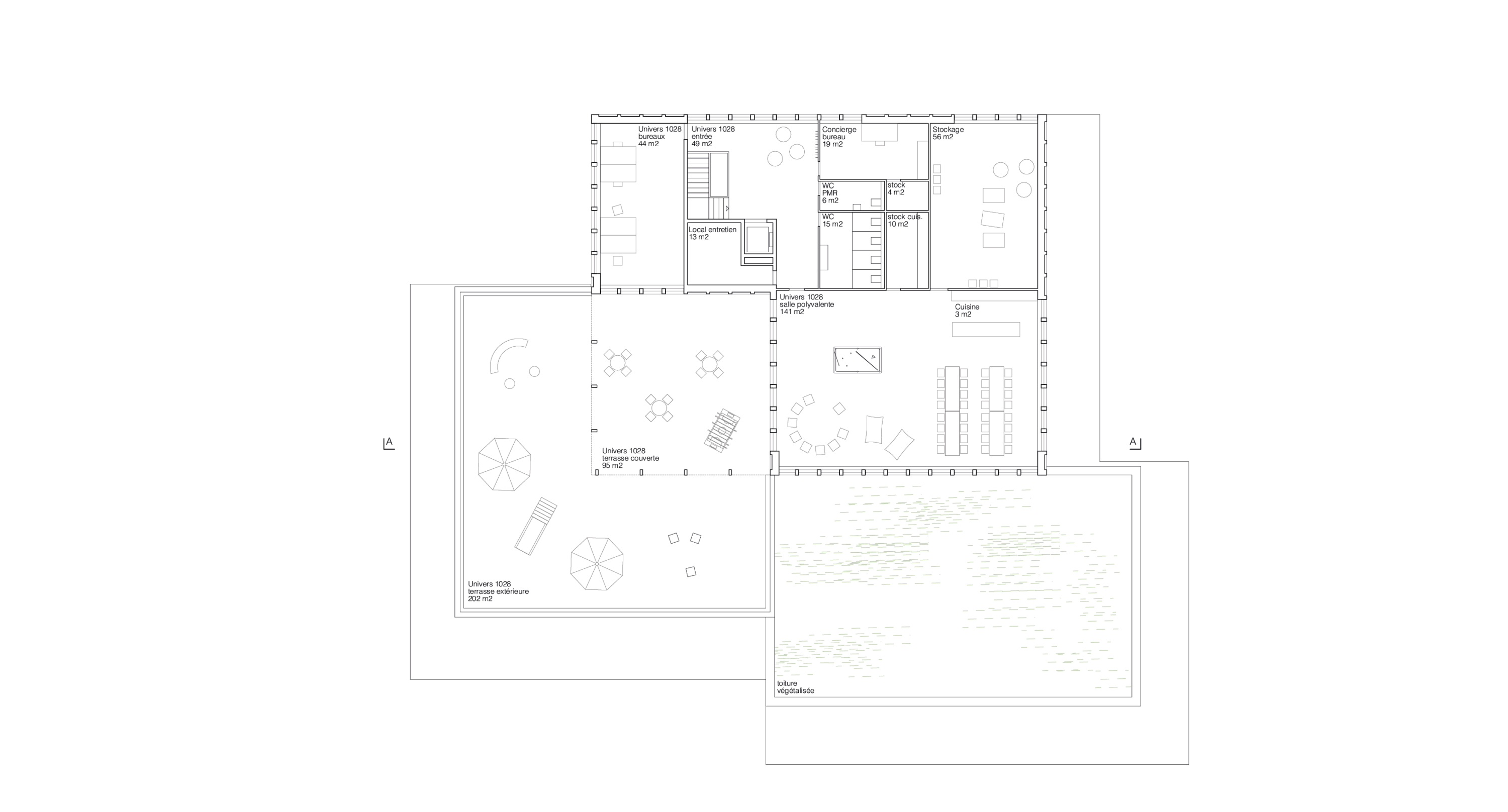
Le bâtiment B est composé de 3 volumes imbriqués générant une forme rayonnante situé au centre de gravité du site scolaire. Il regroupe la cantine, l’infirmerie et l’association Univers 1028. Les différentes hauteurs des volumes favorisent l’insertion du bâtiment dans le site en réduisant son impact visuel. Cette composition a permis de créer un deuxième niveau indépendant dédié à l’association. L’organisation du plan de la cantine offre une grande souplesse d’usage pendant et hors horaires scolaires.


Plan de situation

Bâtiment A rez-de-chaussée

Bâtiment A étage

Bâtiment B rez-de-chaussée

Bâtiment B étage
2303