
Ce projet de patinoire est une magnifique opportunité de mise en réseau des espaces ouverts et publics existants pour offrir un véritable « système de parcs » aux habitants, travailleurs et visiteurs. La mise en commun des espaces publics, pensé comme un grand parc arboré et de liaisons de mobilité douce, permettra de construire un « corridor » social et écologique de la Gare Lancy-Bachet à Pont-Rouge.
Afin de rapprocher la parc dit « des Palettes » au futur parc du Trèfle-Blanc, une partie des terres excavées sera utilisé pour créer un parc en pente douce, facilitant ainsi le franchissement de la route.
Le parvis, ouvert, généreux et multifonctionnel, permet les rassemblements tout en permettant les passages nécessaires et d’urgence. L’axe du tram est intégré au parc. Il structure les tracés et accompagne les parcours de mobilité douce.

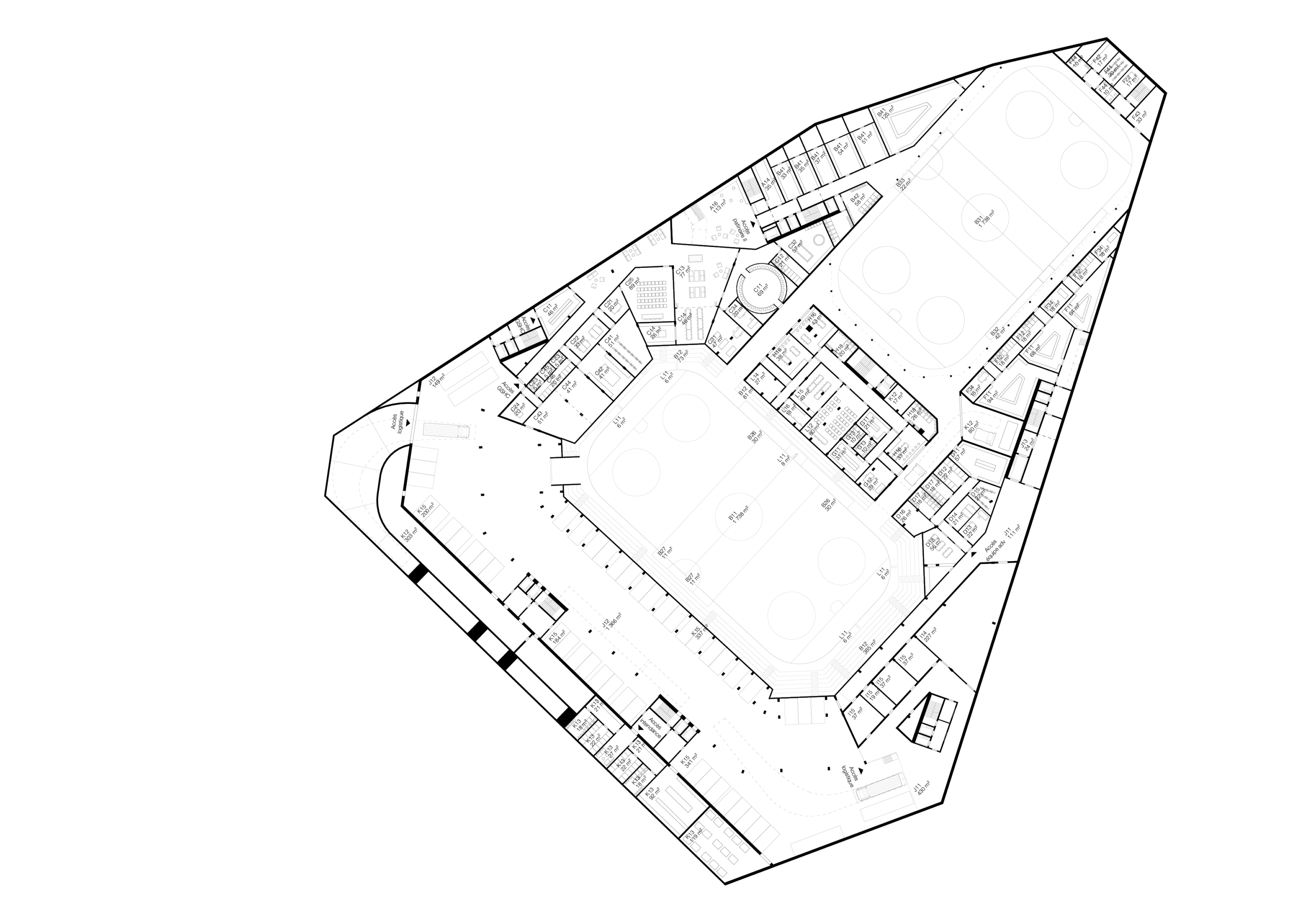
Le projet accueille des divers programmes : un centre sportif et de loisir pour le quartier et Genève, un centre d’entrainement pour les clubs locaux et la relève, la résidence du GSHC, mais encore une salle de spectacle et une bibliothèque. Rassembler tous ces usages est à la fois un défi logistique mais aussi une formidable opportunité de développer des synergies, partager des surfaces, tisser des liens et créer l’agora, le jour, la nuit, toute l’année.
Le socle pensé comme le prolongement de l’espace public, est la porte d’entrées à tous les programmes. L’entrée principale, au quotidien comme les jours de match se fait par le parvis côtés gare Lancy-Bachet. Deux entrées secondaires aux autres angles du bâtiment activent l’espace public au quotidien. Le restaurant, le shop ou l’arcade sont accessibles depuis l’extérieur ou depuis l’espace de déambulation intérieur.

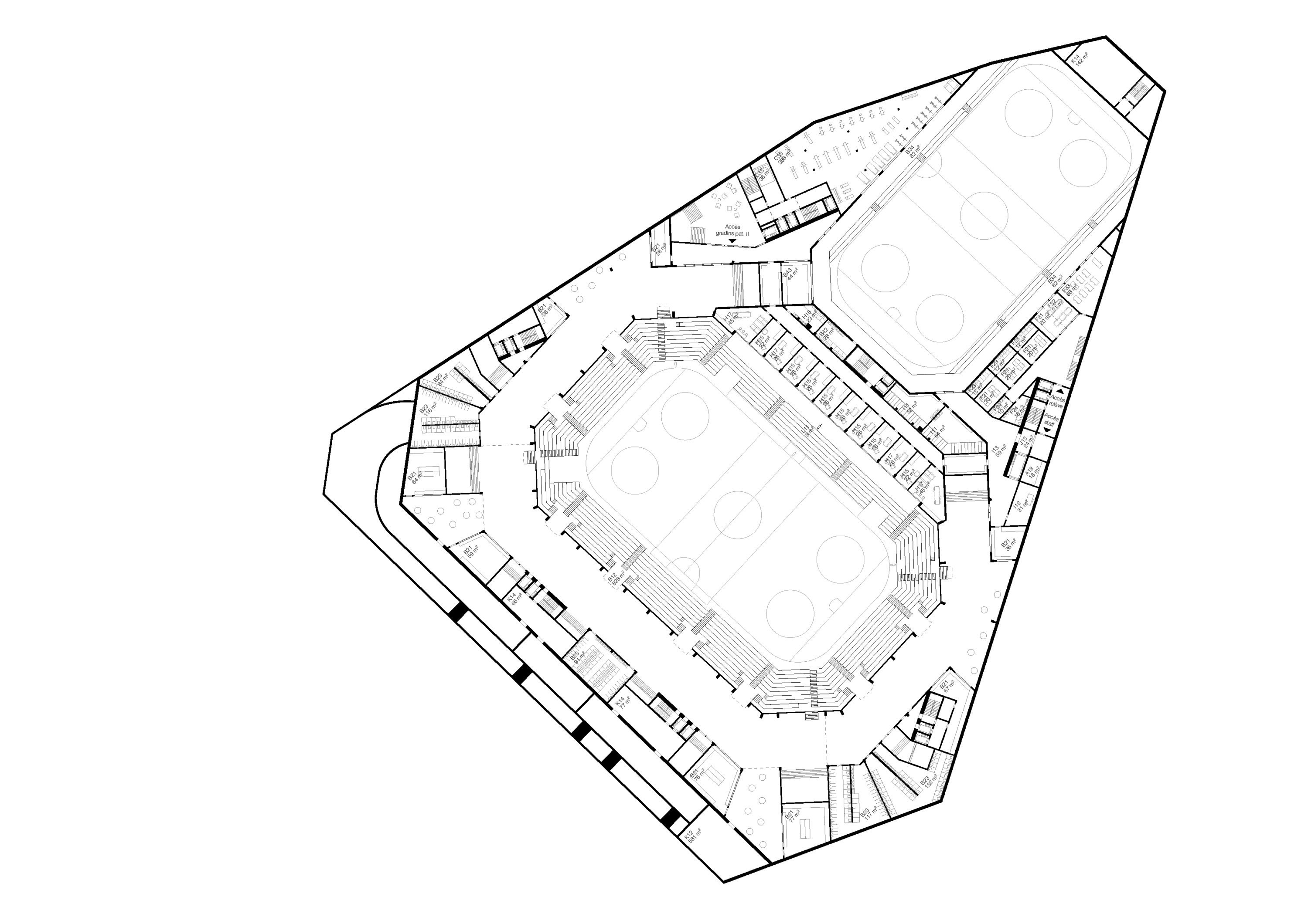
La jauge (8629pl) respecte la forme classique du chaudron avec des gradins continus de la glace au sommet interrompus ponctuellement par les vomitoires pour une convergence physique et visuelle des spectateurs vers la glace. Le côté nord est occupé par les loges et les salons VIP formant une cascade de terrasses de la glace aux espaces hospitalité. Les premières rangées de gradins sont rétractables permettant d’accueillir tout type de manifestation sportive ou des spectacles.


Plan de situation

Plan R-2

Plan R-1


Plan 2ème étage

Plan 6ème étage

Axonométrie programme- Axonométrie staff et joueur
2226