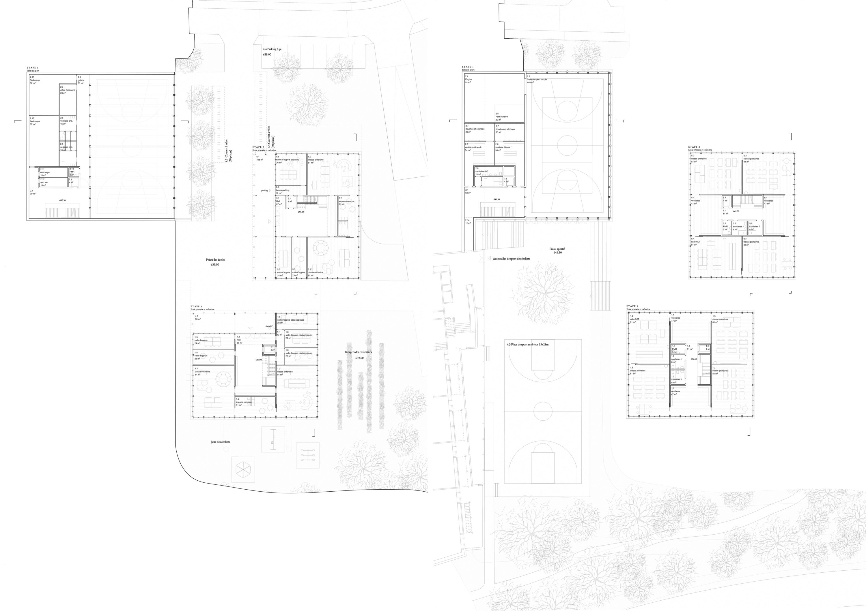
Lieu
Givisiez
Programme
Éducation
Date
2021
Maître de l’ouvrage
Commune de Givisiez (FR)
Mode d’acquisition
Concours, non retenu
Image
© Atelier Brunecky

Concours à un degré en procédure ouverte


Étage
2024